A.5.W.12: Drei-Zimmer-Wohnung in Haus A

  • Kennziffer: A.5.W.12
  • Zimmerzahl: 3
  • Erschließung: Laubengang
  • Fläche: 58,2m²
  • Barrierefrei: Nein
Anderer Wohnungstyp

A.6.W.01: Vier-Zimmer-Wohnung in Haus A

  • Kennziffer: A.6.W.01
  • Zimmerzahl: 4
  • Erschließung: Laubengang
  • Fläche: 70,5m²
  • Barrierefrei: Ja
Anderer Wohnungstyp

A.6.W.05: Zwei-Zimmer-Wohnung in Haus A

  • Kennziffer: A.6.W.05
  • Zimmerzahl: 2
  • Erschließung: Laubengang
  • Fläche: 44,9m²
  • Barrierefrei: Nein
Anderer Wohnungstyp

A.6.W.08: Studio (Einzelzimmer-Wohnung) in Haus A

  • Kennziffer: A.6.W.08
  • Zimmerzahl: 1
  • Erschließung: Laubengang
  • Fläche: 27,0m²
  • Barrierefrei: Nein
Anderer Wohnungstyp

A.6.W.09: Zwei-Zimmer-Wohnung in Haus A

  • Kennziffer: A.6.W.09
  • Zimmerzahl: 2
  • Erschließung: Laubengang
  • Fläche: 46,4m²
  • Barrierefrei: Nein
Anderer Wohnungstyp

A.6.W.10: Studio (Einzelzimmer-Wohnung) in Haus A

  • Kennziffer: A.6.W.10
  • Zimmerzahl: 1
  • Erschließung: Laubengang
  • Fläche: 30,3m²
  • Barrierefrei: Nein
Anderer Wohnungstyp

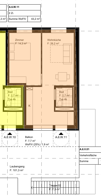
A.6.W.11: Zwei-Zimmer-Wohnung in Haus A

  • Kennziffer: A.6.W.11
  • Zimmerzahl: 2
  • Erschließung: Laubengang
  • Fläche: 43,2m²
  • Barrierefrei: Nein
Anderer Wohnungstyp

B.1.W.02: Studio (Einzelzimmer-Wohnung) in Haus B

  • Kennziffer: B.1.W.02
  • Zimmerzahl: 1
  • Erschließung: Laubengang
  • Fläche: 27,6m²
  • Barrierefrei: Nein
Anderer Wohnungstyp

B.1.W.03: Studio (Einzelzimmer-Wohnung) in Haus B

  • Kennziffer: B.1.W.03
  • Zimmerzahl: 1
  • Erschließung: Laubengang
  • Fläche: 27,6m²
  • Barrierefrei: Nein
Anderer Wohnungstyp

B.1.W.08: Drei-Zimmer-Wohnung in Haus B

  • Kennziffer: B.1.W.08
  • Zimmerzahl: 3
  • Erschließung: Laubengang
  • Fläche: 58,8m²
  • Barrierefrei: Nein
Anderer Wohnungstyp